Drzwi zewnętrzne z ościeżnicą Torino 12 Dąb złoty Prawe 90cm CZYSTE POWIETRZE, 5903325286843, KR CENTER
Energooszczędne drzwi zewnętrzne KR CENTER z serii Torino 12 o grubości 68 mm spełniają rygorystyczne wymogi programu Czyste Powietrze. Konstrukcja oparta na ramiaku z drewna klejonego i wypełnieniu płytą EPS zapewnia doskonałą izolacyjność termiczną oraz akustyczną budynku.
Produkt dostępny na zamówienie!
Po więcej informacji skontaktuj się z doradcą.
Dostawa od 20.00 zł
Szczegóły dotyczące produktu
Konstrukcja i wydajność termiczna
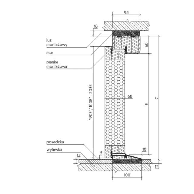
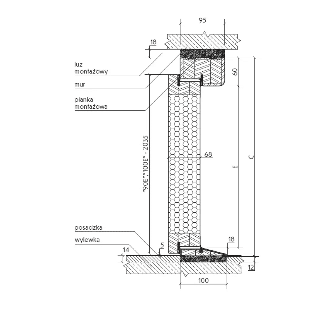
Drzwi zewnętrzne KR CENTER o grubości skrzydła 68 mm zbudowano z blachy ocynkowanej ogniowo oraz ramiaka z drewna klejonego warstwowo, co zapobiega wypaczeniom i gwarantuje wieloletnią trwałość. Wypełnienie termoizolacyjną płytą EPS w połączeniu z systemem uszczelek w skrzydle, ościeżnicy i progu tworzy szczelną barierę ograniczającą straty ciepła. Przylgowa konstrukcja otwierana na zewnątrz została zoptymalizowana pod kątem parametrów technicznych wymaganych przy termomodernizacji obiektów.
Design i bezpieczeństwo linii Torino
Model Torino 12 w kolorze Dąb złoty charakteryzuje się nowoczesnym wzornictwem z wykorzystaniem przeszklenia typu czarny antisol i matowego wykończenia. Unikalny efekt wizualny tworzą czarne panele dekoracyjne z aluminium malowanego proszkowo o subtelnej strukturze skórki pomarańczy. Za bezpieczeństwo odpowiadają bolce antywyważeniowe oraz system dwóch zamków (główny i pomocniczy trójbolcowy) na wkładkę, które stabilnie blokują skrzydło w ościeżnicy.
Kompletny zestaw montażowy
Produkt dostarczany jest jako gotowy system obejmujący skrzydło Torino 12 oraz dopasowaną ościeżnicę drewnianą pokrytą laminatem identycznym z kolorem skrzydła. Pakiet wyposażenia standardowego zawiera próg aluminiowy z wkładką, klamkę, wkładkę oraz estetyczne nasadki na 3 zawiasy. Do poprawnej instalacji drzwi o szerokości 90 cm wymagany jest otwór montażowy o minimalnych wymiarach 1050x2110 mm.

Specyfikacja techniczna
- Kod producenta: 24074
- Kod EAN: 5903325286843
- Producent: KR CENTER
- Kolekcja: KR Center Torino
- Szerokość: 90 cm
- Strona: Prawa
- Kolor: Dąb złoty
- Rodzaj wykończenia: Okleina / Laminowane
- Wykończenie powierzchni: Matowe
- Wzór wykończenia: Wzór / Zdobienie / Przeszklenie
- Szyba: Tak
- Przeszklenia (rodzaj): Czarny antisol
- Typ drzwi: Przylgowe
- Wypełnienie: Drewno + izolacja
- Ilość zawiasów: 3
- Odwrotna przylga: Nie
- Zamek (rodzaj): Standardowy
- Typ zamknięcia: Zamek na wkładkę
- Kierunek otwierania: Na zewnątrz
- Grubość: 68 mm
- Minimalna szerokość otworu montażowego: 1050
- Minimalna wysokość otworu montażowego: 2110 mm
- Model: Torino 12
- Opcja wentylacyjna: Nie
- Antywłamaniowe: Nie
- Izolacja termiczna: Tak
- Izolacja akustyczna: Tak
- Wysokość: 2035
Opinie o produkcie (0)
Dodaj opinię!
Oceń ten produkt i pomóż innym w wyborze.
0.0 / 5
Pytania i odpowiedzi (2)
Masz pytanie o ten produkt?
Nasi eksperci chętnie odpowiedzą na Twoje pytania.




































