Drzwi zewnętrzne z ościeżnicą Torino 12 Orzech Prawe 90cm CZYSTE POWIETRZE, 5903325286904, KR CENTER
Energooszczędne drzwi zewnętrzne KR CENTER z serii Torino 12 o grubości 68 mm zapewniają doskonałą izolację termiczną zgodną z wymogami programu Czyste Powietrze. Wykończone matowym laminatem w kolorze Orzech z przeszkleniem czarny antisol, stanowią solidną barierę antywłamaniową wyposażoną w bolce antywyważeniowe.
Produkt dostępny na zamówienie!
Po więcej informacji skontaktuj się z doradcą.
Dostawa od 20.00 zł
Szczegóły dotyczące produktu
Konstrukcja i wydajność termiczna
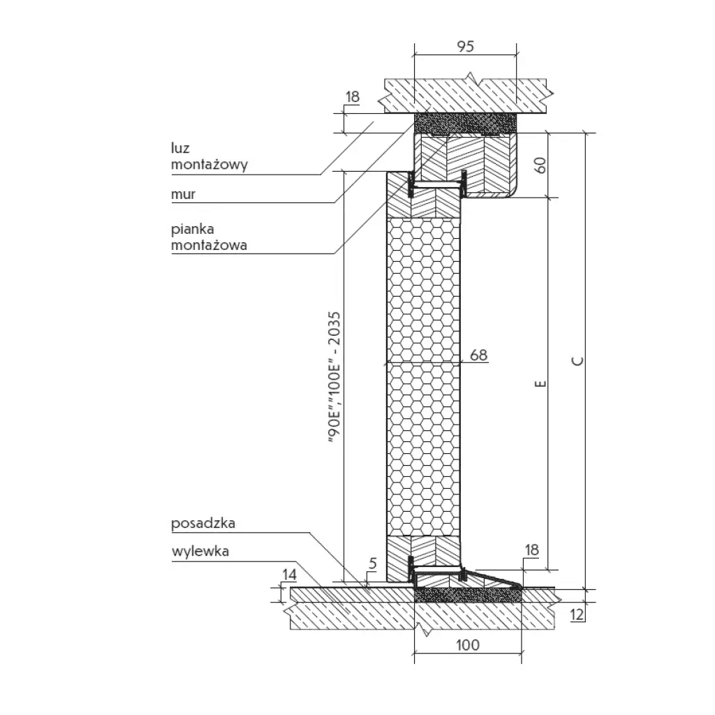
Skrzydło o grubości 68 mm zbudowano na bazie ramiaka z drewna klejonego warstwowo, co w połączeniu z poszyciem z blachy ocynkowanej ogniowo gwarantuje sztywność i odporność na czynniki atmosferyczne. Wypełnienie termoizolacyjną płytą EPS zapewnia wysoką izolacyjność cieplną oraz akustyczną, dzięki czemu te drzwi zewnętrzne KR CENTER kwalifikują się do dotacji w ramach programu Czyste Powietrze. Konstrukcja przylgowa z systemem uszczelek w skrzydle, ościeżnicy i progu skutecznie chroni przed stratami ciepła i przenikaniem hałasu.
Design i bezpieczeństwo linii Torino
Model Torino 12 charakteryzuje się nowoczesną estetyką z czarnym panelem dekoracyjnym z malowanego proszkowo aluminium o subtelnej strukturze skórki pomarańczy oraz eleganckim przeszkleniem czarny antisol. System zabezpieczeń obejmuje zamek główny oraz pomocniczy (trójbolcowy), które współpracując z bolcami antywyważeniowymi, uniemożliwiają wyważenie skrzydła. Powierzchnię zabezpiecza odporna na promieniowanie UV okleina PCV w odcieniu Orzech, która zachowuje intensywność koloru przez lata użytkowania.
Kompletny zestaw montażowy
Wybierając drzwi zewnętrzne KR CENTER, otrzymują Państwo gotowy system gotowy do instalacji w otworze montażowym o wymiarach 1050x2110 mm. W skład zestawu wchodzą:
- Skrzydło drzwiowe Torino 12 o szerokości 90 cm.
- Ościeżnica drewniana pokryta laminatem dopasowanym do koloru skrzydła.
- Próg aluminiowy z wkładką termiczną i uszczelką.
- Dedykowana klamka, wkładka oraz estetyczne nasadki na 3 zawiasy.

Specyfikacja techniczna
- Kod producenta: 24059
- Kod EAN: 5903325286904
- Producent: KR CENTER
- Kolekcja: KR Center Torino
- Szerokość: 90 cm
- Strona: Prawa
- Kolor: Orzech
- Rodzaj wykończenia: Okleina / Laminowane
- Wykończenie powierzchni: Matowe
- Wzór wykończenia: Wzór / Zdobienie / Przeszklenie
- Szyba: Tak
- Przeszklenia (rodzaj): Czarny antisol
- Typ drzwi: Przylgowe
- Wypełnienie: Drewno + izolacja
- Ilość zawiasów: 3
- Odwrotna przylga: Nie
- Zamek (rodzaj): Standardowy
- Typ zamknięcia: Zamek na wkładkę
- Kierunek otwierania: Na zewnątrz
- Grubość: 68 mm
- Minimalna szerokość otworu montażowego: 1050
- Minimalna wysokość otworu montażowego: 2110 mm
- Model: Torino 12
- Opcja wentylacyjna: Nie
- Antywłamaniowe: Nie
- Izolacja termiczna: Tak
- Izolacja akustyczna: Tak
- Wysokość: 2035
Opinie o produkcie (0)
Dodaj opinię!
Oceń ten produkt i pomóż innym w wyborze.
0.0 / 5
Pytania i odpowiedzi (2)
Masz pytanie o ten produkt?
Nasi eksperci chętnie odpowiedzą na Twoje pytania.




































