Drzwi zewnętrzne z ościeżnicą Otello 12 Orzech Prawe 90cm CZYSTE POWIETRZE, 5903324179238, KR CENTER
Energooszczędne drzwi zewnętrzne KR CENTER Otello 12 o grubości 68 mm to konstrukcja z wypełnieniem płytą EPS, która spełnia rygorystyczne wymogi programu CZYSTE POWIETRZE. Połączenie drewna klejonego warstwowo z blachą ocynkowaną zapewnia wysoką stabilność oraz doskonałą izolację termiczną i akustyczną budynku.
Produkt dostępny na zamówienie!
Po więcej informacji skontaktuj się z doradcą.
Dostawa od 20.00 zł
Szczegóły dotyczące produktu
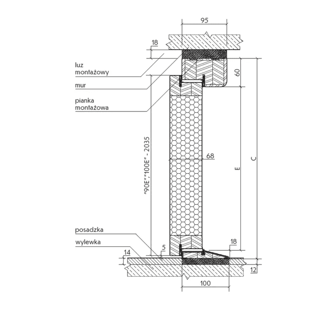
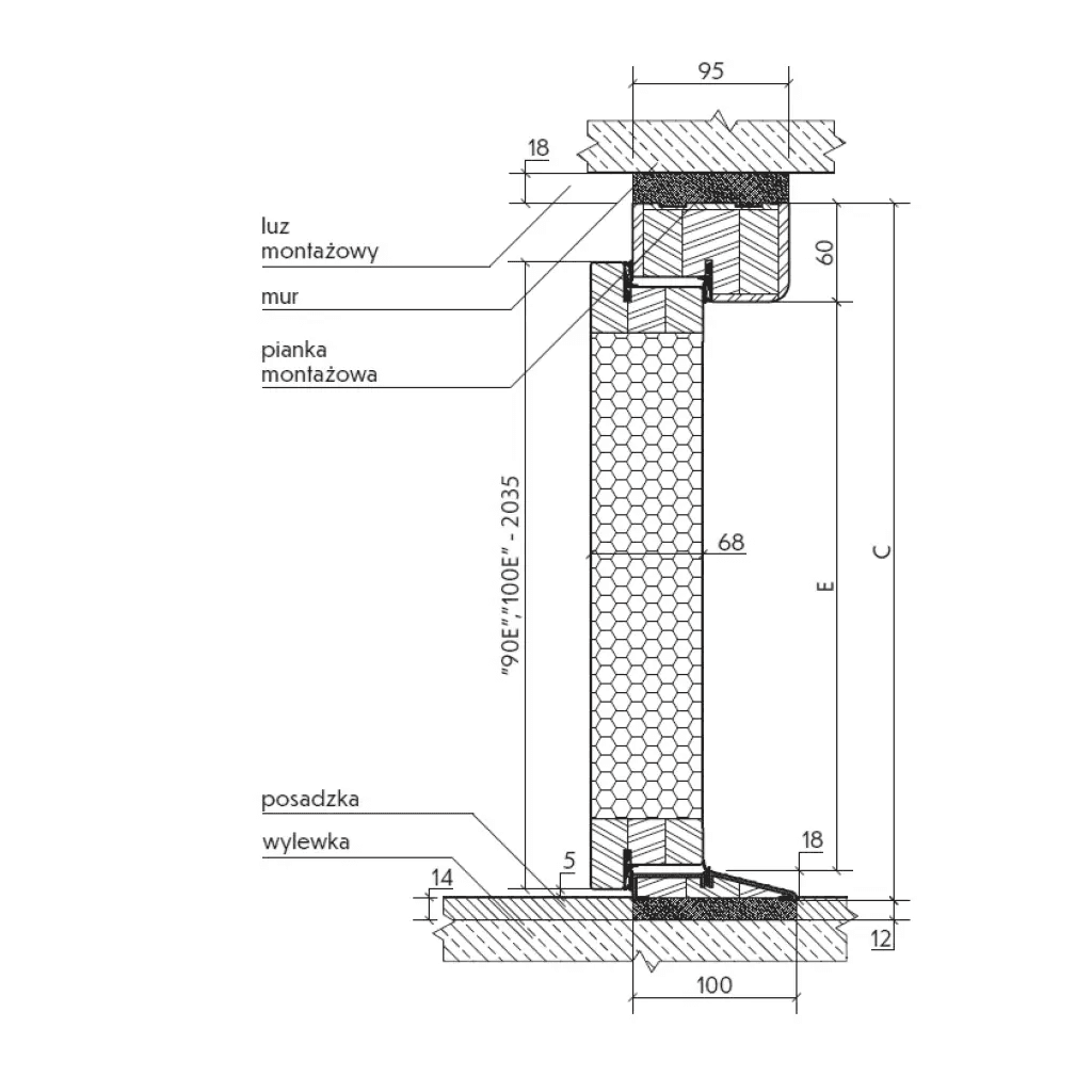
Konstrukcja i parametry izolacyjne
Konstrukcja modelu Otello 12 opiera się na ramiaku z drewna klejonego warstwowo na całym obwodzie, co w połączeniu z poszyciem z blachy ocynkowanej ogniowo eliminuje ryzyko wypaczeń. Wnętrze skrzydła wypełnia termoizolacyjna płyta EPS, która wraz z systemem uszczelek w skrzydle, ościeżnicy i progu tworzy barierę cieplną pozwalającą na uzyskanie dotacji w programie CZYSTE POWIETRZE. Te przylgowe drzwi zewnętrzne KR CENTER o wysokości 2035 mm gwarantują optymalne parametry energooszczędne dla nowoczesnego budownictwa.
Bezpieczeństwo i systemy zamknięć
System zabezpieczeń tworzą zamek główny oraz pomocniczy (trójbolcowy) typu zamek na wkładkę, które zintegrowano z bolcami antywyważeniowymi chroniącymi przed próbami forsowania. Skrzydło o szerokości 90 cm zawieszono na trzech wytrzymałych zawiasach, co zapewnia płynną pracę konstrukcji otwieranej na zewnątrz. Solidne ryglowanie w drzwiach zewnętrznych KR CENTER stabilizuje płaszczyznę drzwi, podnosząc odporność mechaniczną całego zestawu.
Design i kompletne wyposażenie
Minimalistyczna linia Otello charakteryzuje się matową powierzchnią wykończoną laminowaną okleiną PCV w kolorze Orzech, która wykazuje wysoką odporność na promieniowanie UV i wilgoć. Prywatność domowników zapewnia pionowe przeszklenie typu lustro, wkomponowane w skrzydło jako nowoczesny akcent dekoracyjny. Wraz z drzwiami zewnętrznymi KR CENTER dostarczany jest pełny zestaw montażowy:
- Skrzydło Otello 12 o grubości 68 mm
- Ościeżnica drewniana pokryta okleiną w kolorze skrzydła
- Próg aluminiowy z wkładką termiczną
- Klamka oraz wkładka do zamka

Specyfikacja techniczna
- Kod producenta: 24093
- Producent: KR CENTER
- Kolekcja: Otello
- Szerokość: 90 cm
- Strona: Prawa
- Kolor: Orzech
- Rodzaj wykończenia: Okleina / Laminowane
- Wykończenie powierzchni: Matowe
- Wzór wykończenia: Wzór / Zdobienie / Przeszklenie
- Szyba: Tak
- Przeszklenia (rodzaj): Lustro
- Typ drzwi: Przylgowe
- Wypełnienie: Drewno + izolacja
- Ilość zawiasów: 3
- Odwrotna przylga: Nie
- Zamek (rodzaj): Standardowy
- Typ zamknięcia: Zamek na wkładkę
- Kierunek otwierania: Na zewnątrz
- Grubość: 68 mm
- Minimalna szerokość otworu montażowego: 1050
- Minimalna wysokość otworu montażowego: 2110 mm
- Model: Otello 12
- Opcja wentylacyjna: Nie
- Antywłamaniowe: Nie
- Izolacja termiczna: Tak
- Izolacja akustyczna: Tak
- Wysokość: 2035
Opinie o produkcie (0)
Dodaj opinię!
Oceń ten produkt i pomóż innym w wyborze.
0.0 / 5
Pytania i odpowiedzi (2)
Masz pytanie o ten produkt?
Nasi eksperci chętnie odpowiedzą na Twoje pytania.




































