Drzwi zewnętrzne z ościeżnicą Otello 12B Dąb złoty Prawe 90cm CZYSTE POWIETRZE, 5903324179337, KR CENTER
Energooszczędne drzwi zewnętrzne KR CENTER Otello 12B o grubości 68 mm to konstrukcja spełniająca rygorystyczne normy programu Czyste Powietrze. Połączenie ramiaka z drewna klejonego z wypełnieniem płytą termoizolacyjną EPS zapewnia doskonałą barierę cieplną i akustyczną w estetycznym wykończeniu Dąb złoty.
Produkt dostępny na zamówienie!
Po więcej informacji skontaktuj się z doradcą.
Dostawa od 20.00 zł
Szczegóły dotyczące produktu
Konstrukcja i parametry izolacyjne
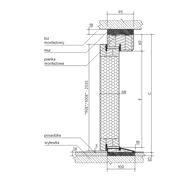
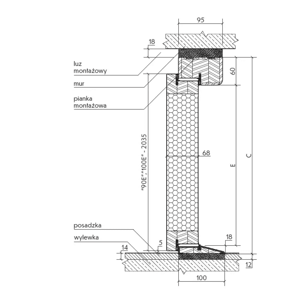
Skrzydło drzwi zewnętrznych KR CENTER o grubości 68 mm oparto na solidnym ramiaku z drewna klejonego warstwowo, co w zestawieniu z poszyciem z blachy ocynkowanej ogniowo eliminuje ryzyko wypaczeń. Wnętrze wypełnione płytą EPS oraz system uszczelek w skrzydle, drewnianej ościeżnicy i progu gwarantują wysoką izolację termiczną, kwalifikując model Otello 12B do prac termoizolacyjnych z dotacją. Powierzchnię zabezpieczono matową, odporną na UV okleiną PVC, która wiernie odwzorowuje strukturę drewna.
Bezpieczeństwo i systemy zamknięć
Model Otello 12B wyposażono w zaawansowany system zabezpieczeń, obejmujący zamek główny oraz pomocniczy (trójbolcowy) ryglowane wkładką patentową. Stabilność osadzenia skrzydła w ościeżnicy podnoszą bolce antywyważeniowe oraz trzy wzmocnione zawiasy, co skutecznie chroni budynek przed próbami włamania. Konstrukcja przylgowa otwierana na zewnątrz zapewnia dodatkową szczelność przy silnym naporze wiatru i opadach atmosferycznych.
Design i kompletne wyposażenie
Minimalistyczna linia Otello charakteryzuje się nowoczesnym wzornictwem z pionowym przeszkleniem typu lustro, które doświetla wnętrze przy zachowaniu pełnej prywatności. Drzwi zewnętrzne KR CENTER o szerokości 90 cm w kolorze Dąb złoty dostarczane są jako gotowy zestaw montażowy, eliminujący konieczność osobnego dokupowania akcesoriów. Skrzydło o wysokości 2035 mm wymaga otworu montażowego o minimalnych wymiarach 1050x2110 mm.
- Skrzydło drzwiowe Otello 12B
- Ościeżnica drewniana w kolorze skrzydła
- Próg aluminiowy z wkładką termiczną
- Dedykowana klamka oraz wkładka do zamka

Specyfikacja techniczna
- Kod producenta: 24038
- Kod EAN: 5903324179337
- Producent: KR CENTER
- Kolekcja: Otello
- Szerokość: 90 cm
- Strona: Prawa
- Kolor: Dąb złoty
- Rodzaj wykończenia: Okleina / Laminowane
- Wykończenie powierzchni: Matowe
- Wzór wykończenia: Wzór / Zdobienie / Przeszklenie
- Szyba: Tak
- Przeszklenia (rodzaj): Lustro
- Typ drzwi: Przylgowe
- Wypełnienie: Drewno + izolacja
- Ilość zawiasów: 3
- Odwrotna przylga: Nie
- Zamek (rodzaj): Standardowy
- Typ zamknięcia: Zamek na wkładkę
- Kierunek otwierania: Na zewnątrz
- Grubość: 68 mm
- Minimalna szerokość otworu montażowego: 1050
- Minimalna wysokość otworu montażowego: 2110 mm
- Model: Otello 12B
- Opcja wentylacyjna: Nie
- Antywłamaniowe: Nie
- Izolacja termiczna: Tak
- Izolacja akustyczna: Tak
- Wysokość: 2035
Opinie o produkcie (0)
Dodaj opinię!
Oceń ten produkt i pomóż innym w wyborze.
0.0 / 5
Pytania i odpowiedzi (2)
Masz pytanie o ten produkt?
Nasi eksperci chętnie odpowiedzą na Twoje pytania.




































